About
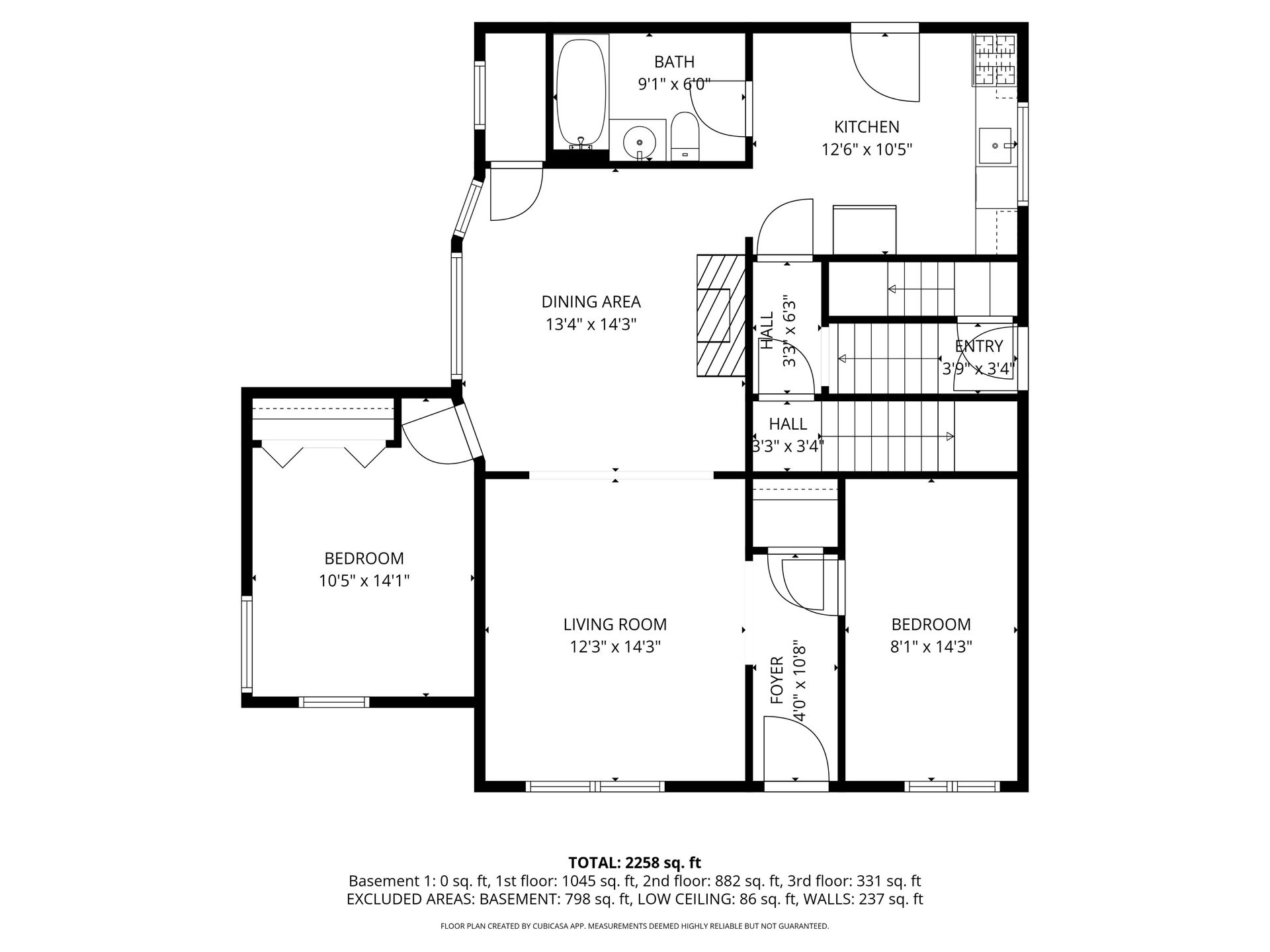
HOT North Austin 2-flat perfect for first-time homebuyers or those seeking related living options. This well-maintained property features a top-level duplex offering 3 bedrooms, 1 bath, a spacious master bedroom with a walk-in closet, and a loft area on the upper floor. The first-floor unit includes 2 bedrooms, 1 bath, a separate formal dining room, and a decorative fireplace. Recent improvements completed in 2024 include the roof, porches, concrete, and water heaters. The dry basement offers excellent potential, including the possibility of duplexing the first-floor unit for a third living space (per buyer due diligence). Both units feature vinyl luxury flooring throughout. The property sits on a beautiful lot with a park-like backyard.
Gallery
Overview
- Price: Offered at $415,000
- Beds: 5
- Baths: 2
-
Buyer's Brokerage Compensation:
2%
Buyer's Brokerage Compensation not binding unless confirmed by separate agreement among applicable parties.
Location
Contact
Ericka Taylor
REALTOR®, PSA, SRES
M: 708.822.7426 | ericka.taylor@cbexchange.com
ErickaTSellsRealEstate.com
REALTOR®, PSA, SRES
M: 708.822.7426 | ericka.taylor@cbexchange.com
ErickaTSellsRealEstate.com