About
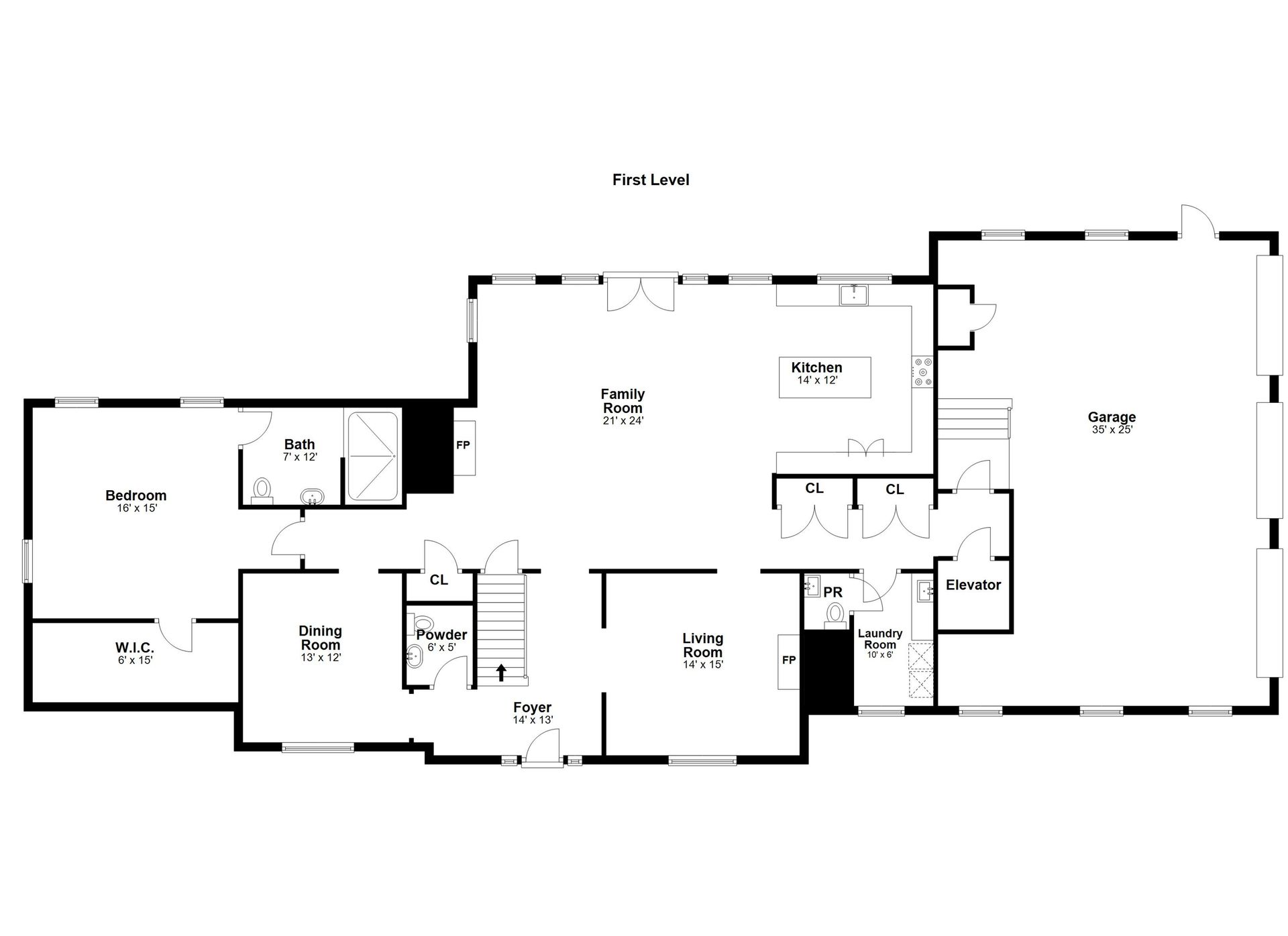
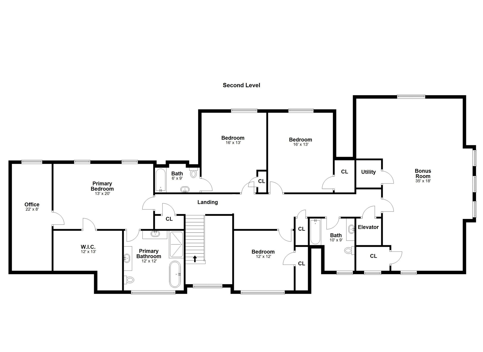
Welcome to this exceptional five bedroom, four full and two half-bath home in the heart of Westport. Thoughtfully designed for both luxury and everyday ease, it offers the rare flexibility of a first or second floor ensuite primary bedroom. Rebuilt in 2005, further renovated in 2015, and featuring a showstopping new kitchen in 2022, this home is truly move-in ready. The kitchen is a chef's dream with quartz countertops, a spacious island, crisp white cabinetry, and top-tier Wolf and Subzero appliances. Designed for seamless living, the home flows effortlessly between spaces to relax, entertain, or work from home. An elevator connects the garage level to the first and second floors for added convenience. A large bonus room on the second floor is ideal as a gym or secondary family room. The 1+/- acre property is a private retreat, with mature landscaping by a renowned NY architect, including specimen trees, ornamental grasses, stone walls, and an ADA-compliant walking path. A level yard provides the ideal space for lawn games. The showpiece 50-foot gunite saltwater pool is surrounded by a generous patio, while an additional terrace off the kitchen and family room offers multiple areas for dining and lounging. Set on a quiet cul-de-sac within a close distance of top-rated middle and high schools, this location offers the best of town and tranquility. A full-house generator ensures uninterrupted comfort. Don't miss the opportunity to make this extraordinary property your own.
Gallery















































Overview
- Price: Offered at $2,799,000
- Living Space: 5311 Sq. Ft.
- Bedrooms: 5
- Bathrooms: 4.2
- Lot Size: 1 Acres