About
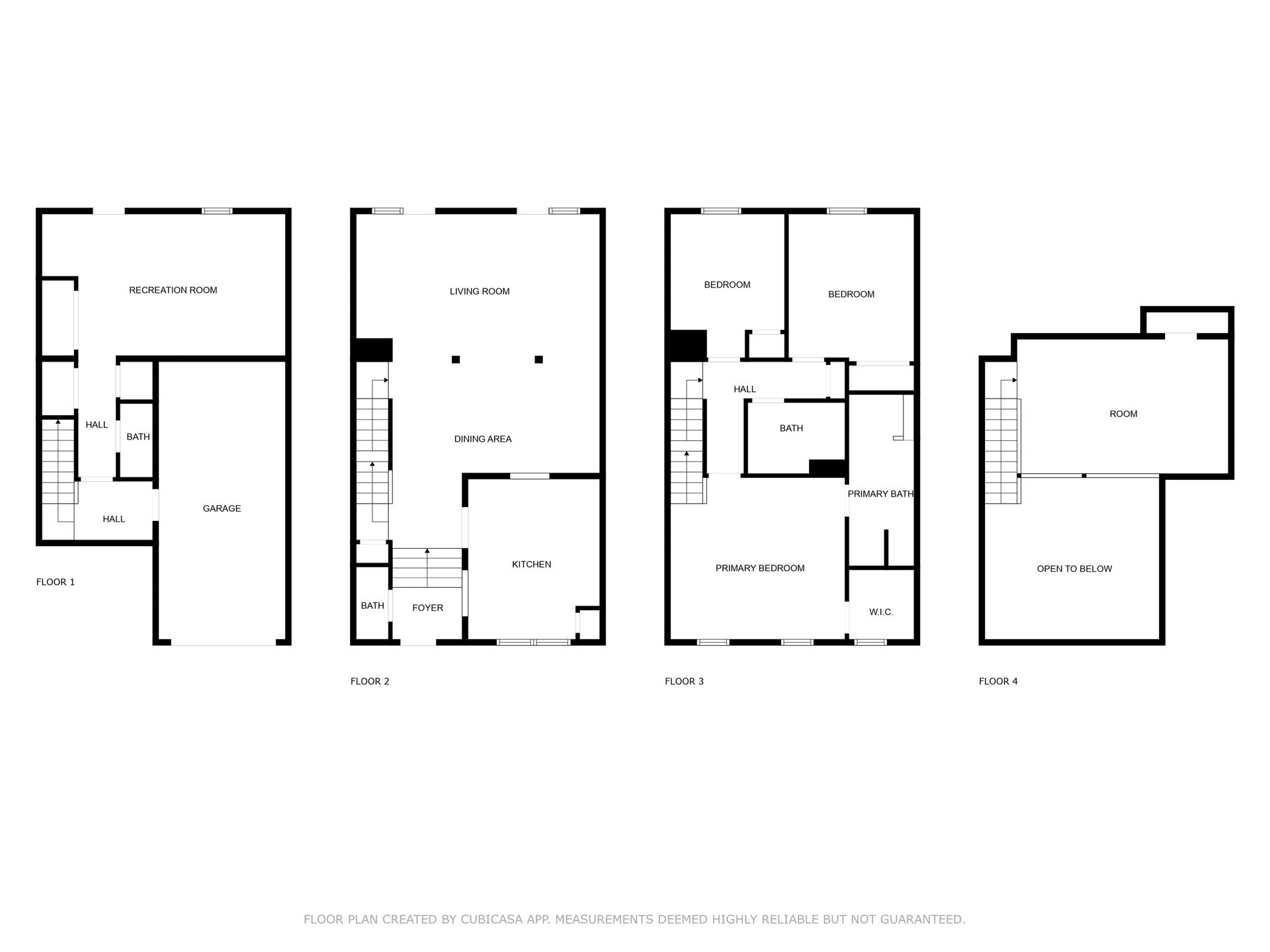
RARE FIND, Walden, 4-LEVEL townhome situated on the 15th fairway with a buffer of beautiful trees! Seclusion plus! Numerous upgrades throughout! Fresh, neutral paint! Newer double-hung tilt windows! Updated luxury vinyl plank flooring! Newer carpet! Updated lighting! Updated baths! Newer roof! Newer HWH! Spacious eat-in kitchen with granite counters, gas cooking, stainless steel appliances and pantry! Half bath with pedestal sink! Oversized dining room! Step-down living room with two doors opening onto custom wood deck with golf course views! Primary bedroom boasts newer carpet, vaulted ceiling, walk-in closet and large LOFT with ceiling fan, closet and door to attic for additional storage! Primary bathroom with separate, soaking tub, walk-in shower and double vanity! Spacious second and third bedrooms on the upper level! Full bath with granite-top vanity and ceramic flooring! Fully-finished, walk-out lower level with separate storage area, door to finished garage, expansive family room and half bath! Washer/dryer in closet on lower level with shelving! Custom wet bar with cabinets and mini-refrigerator! Sliders from the family room open to the paved patio with a 6-foot wood fence! Amazing hot tub under deck for relaxing and unwinding! A true, move-in-ready home! Lots of amenities! Easy access to DC, Baltimore, Annapolis, Fort Meade, NSA, Andrews AFB, public transportation, shopping and restaurants!
Gallery
Overview
- Price: Offered at $500,000
- Living Space: 2739 Sq. Ft.
- Beds: 3
- Baths: 2.2
- Lot Size: 1790