About
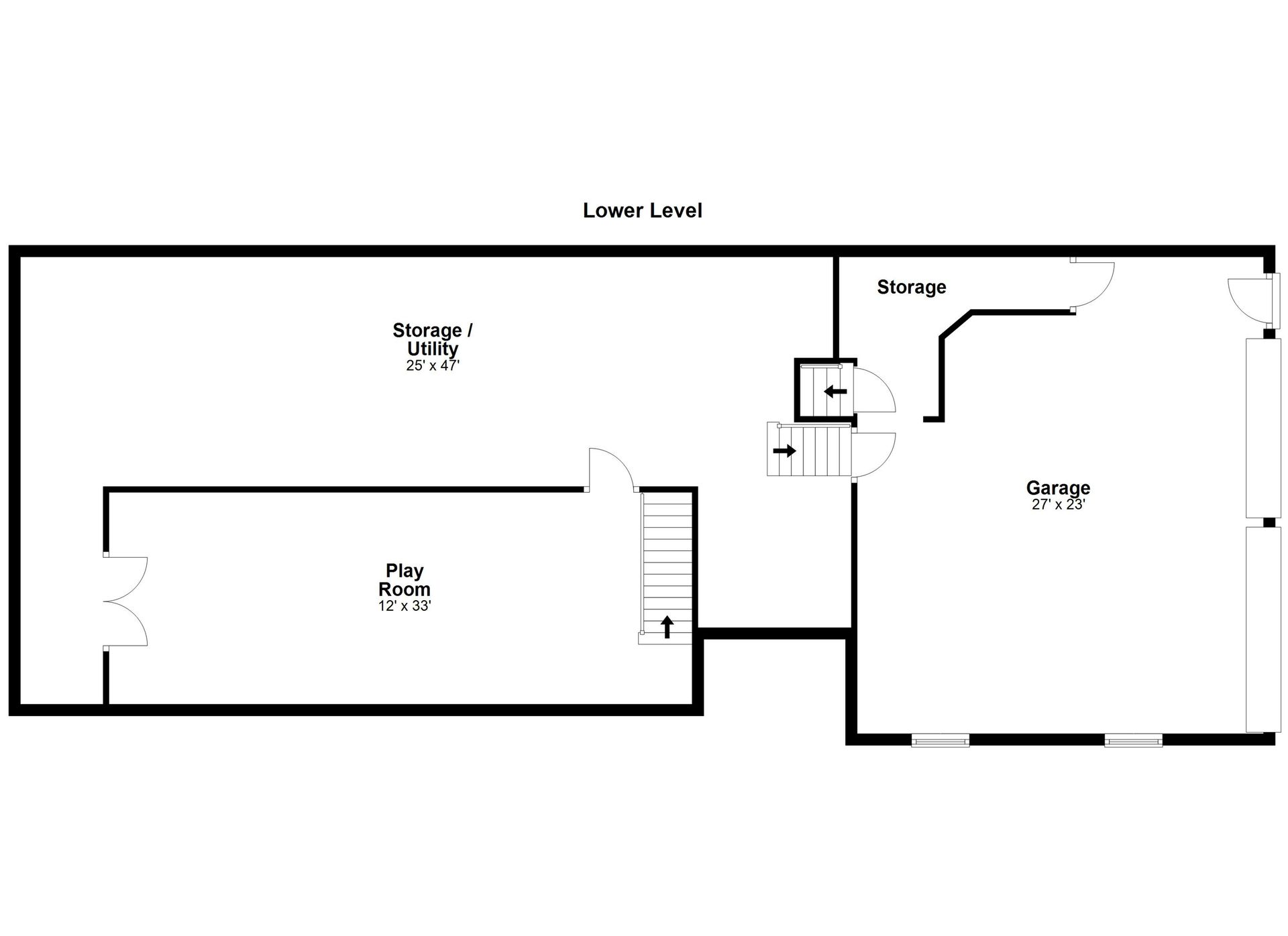
Welcome to 2 Winding Brook Road, a beautifully appointed 3,096 square foot Colonial with four bedrooms and two full and one half baths, set on 3.46 level acres in one of Newtown’s most desirable locations. From the moment you arrive, you’ll be drawn to the serene setting and inviting curb appeal. Once inside, the home continues to impress. The heart of the home is the chef’s kitchen, featuring a SubZero refrigerator, Wolf cooktop, GE double wall oven, granite-topped island, and cabinets galore. The kitchen opens to casual dining and entertaining spaces, with hardwood floors flowing throughout. Gather in the elegant living room with its cozy fireplace, host guests in the formal dining room, or relax in the walk-up family room where a second fireplace creates the perfect ambiance. Upstairs, the spacious primary suite offers a welcoming retreat with its own fireplace and a full bath featuring dual sinks and a shower. Three additional bedrooms are generously sized, and one provides access to a walk-up attic – ideal for extra storage. The finished 600 square foot lower level is ideal for a media room, playroom, or home gym. Step outside to enjoy the level backyard, vinyl inground pool, and a screened-in porch - great for summer evenings - plus a deck for convenient access to the yard. Additional highlights include three fireplaces, central A/C, walk up attic and hardwood floors throughout. This home blends comfort, function, and charm - ready to welcome its next owner. Schedule your private showing today and make this beautiful property yours!
Gallery














































Overview
- Price: Priced at $775,000
- Living Space: 3096 Sq. Ft.
- Beds: 4
- Baths: 2.5
- Lot Size: 3.45 Acres