About
Gut rehab in 2018 with many recent renovations and updates:
* Bright, open kitchen/living/dining areas filled with natural light and rich wood floors.
* Interior flows to the outdoors through glass door within a wall of windows.
* Stunning granite kitchen with dining island complimented by 2025 Thermador Induction stovetop, convection oven, and dishwasher.
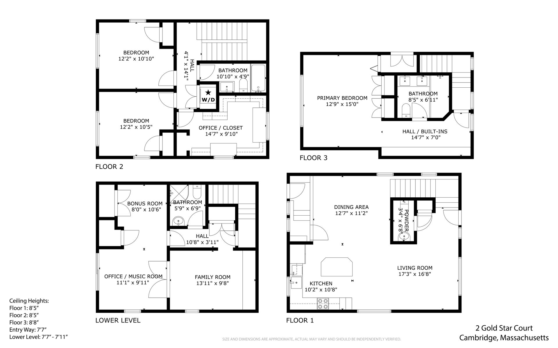
* Half bath and closet on main level with access to finished lower-level which includes family room with built-ins, office/music studio with sound-dampening double doors, extra room ideal for guests, full bath and direct outdoor access. Lower private patio with steps to professionally landscaped, private fenced-in yard with newer pavers for expanded patios and walkways. Bonus garden areas with flower beds.
* Second level includes three well-sized bedrooms with one used as a custom designed home office with built-ins. Stackable laundry in hallway, and full size bathroom with jetted tub.
* Upper-level primary suite offers skylights, built-ins, generous closets, granite full bath
* Custom window treatments, new wall-mounted television, and extra shelves.
* Convenient location close to many amenities including Red Line, Bike Path, Stores, restaurants and more.
Gallery
Overview
- Price: Offered at $1,975,000
- Living Space: 2313 Sq. Ft.
- Beds: 4
- Baths: 3.5
- Lot Size: 2376